New Home Project Β· 2026

Hannah & Colten Southwick

Your complete guide to planning, building, and moving into your new modular home on 2.5 acres. Work through each phase in order β€” check things off as you go.

1
Land & Site
In Progress
2
Permits
Not Started
3
Services
Not Started
4
Foundation
Not Started
5
Home
Not Started
6
Financing
Not Started
7
Move In
Not Started
Project Details
Fill these in as you confirm details
Location / County
Target Move-In Date
Budget (Total Project)
Modular Home Manufacturer
Estimated Cost Breakdown
Rough ranges β€” update as quotes come in
ItemLow EstimateHigh EstimateYour Quote
Land survey & site assessment$3,000$6,000
Permits & approvals$3,000$8,000
Site services (power, water, septic)$40,000$80,000
Access road / driveway$5,000$20,000
Foundation$20,000$45,000
Modular home (supply)$180,000$320,000
Delivery & installation$15,000$30,000
Finishing & hookups$10,000$25,000
Landscaping & final grade$5,000$15,000
TOTAL ESTIMATE$281,000$549,000
Phase 1

Land & Site Assessment

The title has been obtained. There are important encumbrances that a lawyer must review before any transfer or building. Read the title summary carefully.

βœ… Title Confirmed β€” Key Details
Certificate of Title β€” Alberta Land Titles Β· Title No. 202 036 653
Owner
Jill P. Vaughan
55109 Range Road 260, Sturgeon County, AB T8R 0T4
Legal Description
Plan 1921774 Β· Block 1 Β· Lot 3
LINC: 0038 349 445 Β· ATS: 4;25;55;7;SW
Area
1 Hectare (2.47 acres)
S.W. ΒΌ Sec.7 Β· Twp.55 Β· Rge.25 Β· W4M Β· Sturgeon County
Purchased / Cost Base
February 14, 2020 Β· $215,000
No mortgage registered β€” land is debt-free βœ…
Mineral rights: "Excepting thereout all mines and minerals" β€” Jill does not own the mineral rights, which is normal in Alberta. Confirm with the bank this won't affect the mortgage.
⚠️ Encumbrances on Title β€” Lawyer Required
4 caveats are registered. These must be reviewed by a real estate lawyer before any transfer.
Do not sign anything or pay any deposit until a lawyer has reviewed these caveats. Three of the four are filed by Sturgeon County and could affect what you can build, the size of the lot, or the County's right to acquire a portion of the land.
Reg. #DateCaveatorNatureAction Needed
782 252 770Nov 1978 Plains Western Gas & Electric Co. Ltd. (now ATCO) Utility easement/right-of-way Confirm exact location β€” affects where home and outbuildings can be placed
182 187 374Aug 2018 Sturgeon County Acquisition of Land Lawyer must confirm this is discharged or what it covers
182 187 377Aug 2018 Sturgeon County Deferred Reserve County may have reserved right to take a portion β€” must be resolved
192 127 067Jun 2019 Sturgeon County Acquisition of Land Second County acquisition caveat β€” lawyer must explain
What "Deferred Reserve" typically means: When a parcel is subdivided in Alberta, the County is entitled to a Municipal Reserve (usually 10% of land area). A Deferred Reserve means this hasn't been taken yet β€” the County may collect it later, potentially as land or cash. A lawyer will confirm if this has been discharged or still applies.
Survey Plan β€” Proposed Lot 3
Survey Plan
Surveyed by Don Wilson Surveys Ltd. Β· File 19033 Β· February 7, 2019 Β· Scale 1:5000
Note the 30m government road allowance and Telus trench along the west boundary (visible on the aerial photo). These affect where the home, driveway approach, and any outbuildings can be positioned. The existing driveway approach is shown on the west boundary.
Good news: No mortgage on the land and the existing farm is adjacent β€” power, road access, and potentially water are nearby. The caveats are the key thing to resolve first.
Survey & Legal
Do First
Zoning & Land Use
Site Conditions
Notes
Phase 2

Permitting & Approvals

You need government approval before breaking ground. This takes time β€” start early. Permits protect you legally and are required for your mortgage.

Timeline warning: Permit approval in rural Alberta can take 4–12 weeks. Apply as early as possible β€” nothing else can start until permits are issued.
Development Permit
Building Permit
Septic Permit
Notes & Contacts
Phase 3

Site Services

Getting power, water, and waste management to your property. This is often the biggest variable cost on a rural build β€” get quotes early.

Electrical Power
Water
Septic System
Other Services
Notes & Quotes
Phase 4

Foundation

Your foundation is what the modular home sits on. Get this right β€” it's permanent. The type depends on your soil, your home size, and your budget.

Foundation Type β€” Choose One
Basement (full or walkout): Most common in Alberta. Adds living space. Cost: $30,000–$60,000.

Crawl space: Elevated off ground, access underneath. Cost: $15,000–$25,000.

Concrete slab on grade: Simplest and cheapest but no storage below. Cost: $10,000–$20,000.

Piers/screw piles: Fast, less excavation, good for some modular. Cost: $8,000–$18,000.
Notes & Quotes
Phase 5

Modular Home Selection

Choosing your home is the exciting part. Modular homes are built in a factory to the same code as site-built homes β€” often faster, tighter, and better value.

Research & Selection
Alberta modular home manufacturers to research: Homes by Norwood Β· Triple M Housing Β· Kent Homes Β· Prestige Homes Β· Paramount Homes Β· SRI Homes
Contract & Purchase
Home Details & Notes
Phase 6

Financing & Mortgage

Your deal has three moving parts: selling the Spruce Grove house, getting land from Mom, and buying a $580K modular home. All three have to align before you sign anything. Work through this page carefully β€” in order.

Your Deal at a Glance
Three pieces that must all fit together
🏑
Piece 1
Sell Spruce Grove
Your equity comes from here. Sale proceeds = your down payment + buffer.
🌾
Piece 2
Land from Mom
The 2.5 acres is being vended into the deal. Bank needs this formally documented.
πŸ”‘
Piece 3
Modular Home
$580K home. Deposit required now. Delivery by September. This is the time pressure.
The sequencing risk: The builder wants a deposit now and delivery in September. But your equity is locked in the Spruce Grove house. If Spruce Grove hasn't sold, where does the deposit money come from β€” and what happens if it doesn't sell in time? This needs an answer before signing anything.
Equity & Down Payment Calculator
Know your numbers before you talk to the bank
Spruce Grove estimated sale price ($)
Remaining mortgage on Spruce Grove ($)
Land value from Mom β€” appraised ($)
Modular home price ($)
Est. site costs (services, foundation, etc.) ($)
Realtor fees on Spruce Grove sale (%)
⚠️ Dad's Warning β€” Before You Pay Any Deposit

The builder wants a deposit NOW and delivery by September. Your equity is tied up in Spruce Grove. Every question below needs a YES before any money changes hands.

The Land Transfer from Mom β€” Do This Right
The bank needs this properly documented or they won't count it
The land being vended from Mom is potentially your most powerful equity asset β€” but only if it's handled correctly. Banks will not accept an informal "Mom's giving us the land." It must be properly transferred and appraised.
Selling Spruce Grove First
Your equity source β€” timing is everything
The timing risk: If Spruce Grove isn't sold before you need to take possession of the modular home, you may need bridge financing β€” a short-term loan that covers the gap. This costs money and isn't always easy to get. The best scenario is Spruce Grove sold and closed before you need to draw on your construction mortgage.
Total Project Cost β€” Know the Real Number
ItemEst. CostYour Number
Modular home$580,000
Foundation$25,000–$50,000
Site services (power, well, septic)$40,000–$80,000
Access road / driveway$5,000–$20,000
Permits (all types)$5,000–$10,000
Delivery & installation$15,000–$30,000
Finishing, hookups, landscaping$15,000–$30,000
Legal (land transfer + mortgage)$3,000–$5,000
Contingency (10% β€” never skip this)~$70,000
TOTAL ESTIMATE$758K–$875KYour total:
Note: The land from Mom is not a cost β€” but the bank will want it appraised and on title. The modular home price ($580K) is the single biggest line item.
Mortgage Calculator
Estimate your monthly payments
Total Project Cost ($)
Down Payment ($)
Interest Rate (%)
Amortization (years)
Affordability Reality Check
Banks use these ratios β€” know them before you apply
GDS (Gross Debt Service) ratio: Your housing costs (mortgage + property tax + heat) should be no more than 32% of gross monthly income.

TDS (Total Debt Service) ratio: All debt payments (housing + car + student loans + credit cards) should be no more than 44% of gross monthly income.

If you exceed these, the bank will not approve your mortgage.
Combined Gross Monthly Income ($)
Other Monthly Debt Payments ($)
Questions to Ask Your Bank or Broker
Don't leave the meeting without answers to all of these
Before Signing the Modular Home Contract
Every one of these must be confirmed β€” in writing β€” before you sign
Government Programs β€” Free Money, Don't Miss These
Lender Notes & Contacts
Phase 7

Installation & Move-In

The home arrives. This is the moment everything comes together. Proper coordination in this phase gets you through the finish line.

Before Delivery
Delivery & Set
Hookups & Finishing
Final Inspections & Occupancy
Notes
The Home Β· Jandel Homes

Pinnacle C β€” Titan Kitchen Special

2,280 sq ft Β· 30' Γ— 76' Β· 3 Bedrooms Β· 2 Bathrooms Β· CSA A277 Certified Β· 20-Year Structural Warranty

βœ… CSA A277 Certified β€” confirmed in writing. This is exactly what Alberta requires and what your lender needs. Keep this documentation safe β€” you'll need it for your building permit application and your mortgage.
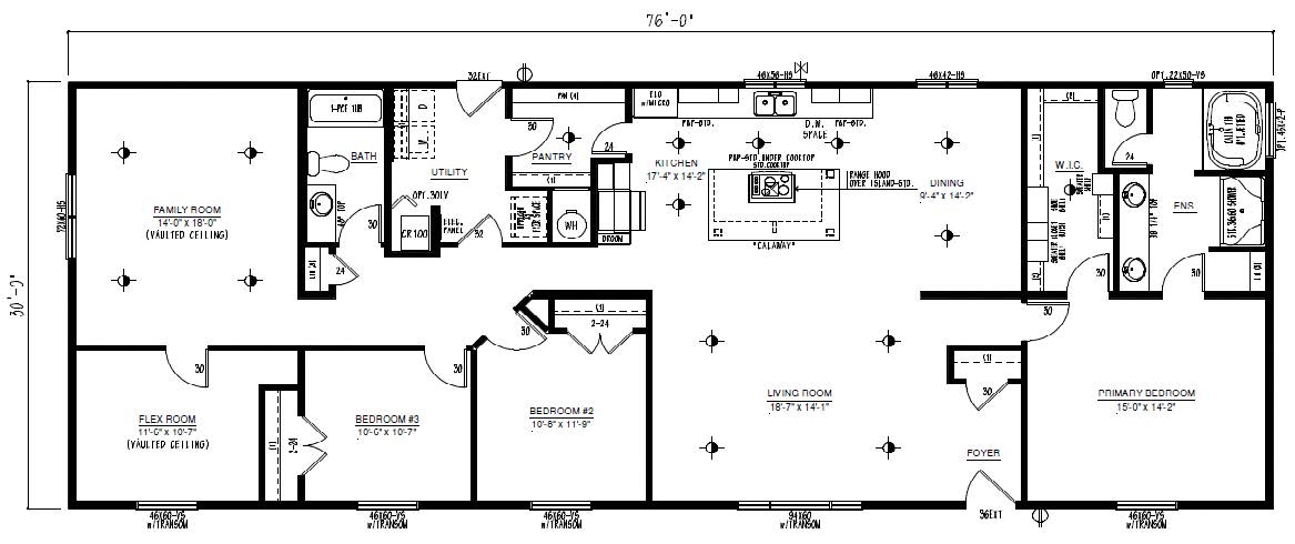
Floor Plan β€” Pinnacle C
Pinnacle C Floor Plan
2,280
Square Feet
30Γ—76
Footprint (ft)
3 / 2
Bed / Bath
Room Sizes
RoomSizeNotes
Primary Bedroom15' Γ— 14'Ensuite with separate tub + shower, walk-in closet
Bedroom #210'-8" Γ— 11'-9"
Bedroom #310'-0" Γ— 10'-7"
Living Room18'-7" Γ— 14'-1"
Family Room14' Γ— 18'Vaulted ceiling
Kitchen17'-4" Γ— 14'-2"Full island, Calaway option
Dining9'-4" Γ— 14'-2"
Flex Room11' Γ— 10'-7"Vaulted ceiling β€” office/4th bed option
Pantryβ€”Walk-in with tight weave shelving
What's Included β€” Standard Features
This is what $580K gets you β€” more than most people expect
Kitchen (Titan Kitchen Special)
  • βœ“24 cu ft stainless French door fridge with internal water
  • βœ“Stainless built-in microwave
  • βœ“Stainless dishwasher
  • βœ“Electric cooktop (plan specific)
  • βœ“Built-in wall oven (plan specific)
  • βœ“Range hood over island
  • βœ“Full artisan tile backsplash
  • βœ“Laminate countertops with self edge
  • βœ“Pot and pan drawers
  • βœ“Chrome gooseneck faucet with spray
  • βœ“Modular cabinets with crown moulding
Construction & Structure
  • βœ“CSA A277 certified (bank & permit requirement βœ…)
  • βœ“8' walls throughout
  • βœ“Vaulted ceilings β€” living, dining, kitchen, family, flex
  • βœ“2"Γ—6" exterior walls / 2"Γ—4" interior
  • βœ“R60 ceiling / R22 walls / R40 floor insulation
  • βœ“Engineered wood web truss floor system
  • βœ“Lifetime warranty shingles + full underlayment
  • βœ“Exterior rigid wall system + house wrap
  • βœ“Low-E argon windows with screens
  • βœ“Maintenance-free vinyl siding
  • βœ“20-year structural warranty
Mechanical & Electrical
  • βœ“Gas furnace with electronic ignition (installed by others)
  • βœ“40 US gallon electric hot water tank (by others)
  • βœ“100 AMP electrical panel
  • βœ“Digital programmable thermostat
  • βœ“Heat ducts and plumbing in floor system
  • βœ“Frost-free exterior tap
  • βœ“2Γ— exterior GFI receptacles
  • βœ“Dedicated receptacle for heat tape under floor
  • βœ“Plumbed for washer, wired for dryer
Finishes & Interior
  • βœ“Finished drywall throughout, prime and paint
  • βœ“Β½" splattered gyproc ceilings
  • βœ“6" surface-mount pot lights β€” kitchen, dining, living
  • βœ“Cordless cellular blinds throughout
  • βœ“Foam-back linoleum fully glued and rolled
  • βœ“Continuous rod shelving in closets
  • βœ“White Mercer interior doors
  • βœ“Chrome round lever hardware throughout
  • βœ“Coach lighting at all exterior doors
What's NOT Included β€” Budget for These Separately
Common surprises β€” don't get caught short
These items are noted "by others" or "installed by others" in the Jandel specs. They are NOT part of the $580K price and need to be budgeted separately.
Browse the full home online
Pinnacle β€” Jandel Homes Website
Photos, floor plan, all details β€” tap to open
View Home β†’
Jandel Homes Contact
Edmonton Sales Centre
25530 – 117 Avenue
Acheson, AB T7X 6C2
780.960.4232 / 855.463.0084
jandelhomes.com
Grande Prairie Sales Centre
9407 – 163 Avenue
Grande Prairie, AB T8X 0B6
780.402.3170 / 877.504.5005
Notes from builder conversations
Things You May Not Be Thinking About

The Stuff That Surprises New Rural Homeowners

You've thought about the house. Here are the things most people don't think about until they're living there β€” or until they wish they had.

πŸš— Storage, Garage & Outbuildings
You're moving from a town lot to 2.5 acres β€” plan for everything you own
The modular home has no garage. You have two ATVs, bikes, vehicles, tools, seasonal gear β€” where does it all go? This needs to be planned and budgeted before you move in, not after.
🌾 Mom's Land Transfer β€” The Tax Question
She has a cost base. This needs an accountant before anything is signed.
This is important. If Mom has a cost base on the land (what she paid or was deemed to have paid for it), and she transfers it at below fair market value, or gifts it, there are potential capital gains tax implications for her β€” even on a gift to family.
The numbers we know: Jill bought this land on February 14, 2020 for $215,000 β€” that is her cost base. If the land has increased in value since then, she will owe capital gains tax on 50% of that gain at her marginal tax rate. Even on a gift to family, CRA deems it sold at fair market value.
Example (rough math): If the land is now worth $280,000, the capital gain is $65,000. Jill pays tax on $32,500 (50% inclusion rate). At a 40% marginal rate that's roughly $13,000 in tax. At $350K value the tax could be $27,000+. This is why she needs an accountant before anything is signed.
πŸ“‹ Everything Else First-Time Rural Homeowners Forget
Lifestyle & Practicalities
  • How far is the nearest grocery store, school, hospital?
  • What's the road condition in winter? Is it maintained by the County?
  • Mail delivery or community mailbox? Canada Post rural delivery?
  • Garbage pickup β€” rural properties often have no curbside service. Budget for bin rental or transfer station trips.
  • Snow removal for driveway β€” do you own equipment or hire out?
  • Internet service β€” Starlink is your best rural option. ~$130/mo + $700 equipment.
  • Cell service β€” check coverage at the actual parcel before committing
Insurance & Ongoing Costs
  • Rural home insurance is different β€” and often more expensive than city. Get quotes early.
    Modular homes on rural land can be harder to insure with some providers β€” shop around
  • Well maintenance β€” annual water testing, pump maintenance, potential replacement costs
  • Septic maintenance β€” pump out every 3–5 years (~$300–$500). Budget for it.
  • Property taxes β€” rural acreage rates in Sturgeon County, confirm with County
  • Propane vs. natural gas β€” is natural gas available on Range Rd 260? If not, propane tank and fill costs are ongoing.
The Land Itself
  • Fencing β€” do you want to fence the perimeter? Cost: $5,000–$20,000 depending on type and length
  • Landscaping β€” grading, seeding, trees. Rural lots need significant work post-construction.
  • Dugout / drainage β€” does water pool on the property after rain? Talk to the neighbours.
  • What's adjacent to the property? Farming operations mean dust, chemicals, heavy equipment traffic in season.
  • Are there any agricultural leases on the land that need to be ended before building?
Family & Neighbour Dynamics
  • Living next to Mom's farm β€” have a clear conversation about boundaries, shared access, and expectations now, not later
  • What happens to the farm land long-term? Is this 2.5 acres part of a larger inheritance plan that needs to be documented?
  • If Mom's circumstances change β€” is the land transfer reversible? Should there be a right of first refusal agreement?
  • Have both families (yours and Colten's) talked through expectations for the property?
πŸ’° The Real Budget β€” What People Wish They'd Known
Most first-time rural builders underestimate total cost by 20–30%. The home price is the easy part. Everything below is real money that catches people off guard.
Often Forgotten ItemTypical Cost
Detached garage or quonset$25,000–$60,000
Landscaping and final grading$10,000–$25,000
Fencing$5,000–$20,000
Driveway (gravel, culvert, approach)$5,000–$20,000
Starlink internet setup$700 + $130/mo
Propane tank + first fill (if no gas)$2,000–$5,000
Snow removal equipment or contract$1,500–$8,000/yr
Rural home insurance premium$2,500–$5,000/yr
Accountant + lawyer fees (land transfer)$3,000–$8,000
Contingency (things you didn't plan for)10% of total
Notes from today's conversation
Project Budget

Every Dollar, All In One Place

Enter your own estimates in the "Your Number" column. The budget total updates automatically. Don't leave this page until every row has a number.

Assumptions: Cistern for water Β· Septic for waste Β· ATCO power connection Β· ATCO natural gas. All estimates are Alberta 2024-2025 ranges researched for Sturgeon County area. Your actual quotes may vary β€” get 3 quotes on every major item.
Line Item Kay's Estimate
researched local ranges
Your Number
tap to enter
Notes
The Home
Jandel Pinnacle C β€” Titan Kitchen Special
2,280 sq ft Β· CSA A277 Β· includes appliances
$580,000 Confirmed price with builder
Delivery to site (Sturgeon County, rural) $8K–$15K Confirm with Jandel β€” included or separate?
Crane / set crew day $3K–$6K Jandel may coordinate
Foundation
Poured concrete foundation (30'Γ—76')
Full basement vs. crawl space β€” get Jandel's recommendation first
$55K–$100K Reddit AB 2025: $100K+ cited for basement. Get 3 local quotes.
Excavation & backfill $3K–$7K May be included in foundation quote
Site Services
ATCO Electric β€” power connection to property
Call 310-5678 for quote. Cost varies by distance from nearest pole.
$8K–$25K Jill's farm has power β€” proximity could reduce cost significantly
Electrical contractor β€” panel, service entry, hookups $3K–$8K Separate from ATCO line connection
ATCO Gas β€” natural gas service connection
Confirm gas is available on Range Rd 260 before budgeting this
$3K–$12K If no gas available, budget $3K–$6K for propane tank + first fill instead
Cistern β€” underground concrete water tank
3,000–5,000 gal recommended for family home. Suppliers: Westcon Precast, Tanks-A-Lot
$8K–$18K Includes tank, excavation, plumbing, pump, pressure system. Budget $300–$500/yr for water delivery.
Septic system β€” conventional Alberta
Requires design + permit (Sturgeon County). Suppliers: Koomen Contracting, Proflow Septic
$30K–$55K Alberta average $30K–$50K. Advanced treatment systems run higher.
Plumbing hookups (cistern/septic to home) $2K–$4K
Gas furnace + hot water tank installation
Supplied by Jandel, installed by your contractor
$1.5K–$4K Not included in $580K β€” confirm with Jandel
Site Work & Access
Driveway β€” gravel, approach off Range Rd 260, culvert $5K–$18K Existing approach visible on aerial β€” may reduce cost
Final grading, rough landscaping, seeding $5K–$15K
Steps, deck, exterior skirting $2K–$5K Confirm with Jandel what's included in price
Permits & Professional Fees
Development Permit β€” Sturgeon County $1.5K–$3K Call County at 780-939-8275 for current fee
Building Permit (all trades) $2K–$5K Via Superior Safety Codes Inc.
Private Sewage Permit $300–$600 Work must start within 90 days
Real Property Report / land survey $2K–$4K Required for mortgage and permits
Real estate lawyer β€” land transfer + mortgage
Includes land transfer from Jill, caveat reviews, mortgage closing
$3K–$6K Do not skip β€” 4 caveats on title need review
Land appraisal (for bank + tax planning) $500–$1.5K Jill's land β€” current market value needed
Tax accountant (Jill's capital gains analysis) $1K–$2.5K Cost base $215K β€” tax bill depends on current value
Garage & Storage (no garage in home price)
Detached garage or quonset
ATVs, vehicles, bikes, tools β€” this is not optional for rural living
$30K–$60K Apply for permit alongside house to save time
Contingency
Contingency β€” 10% of subtotal
Do not touch this. Things always cost more.
auto Will auto-calculate if left blank
Kay's Low Estimate
β€”
Kay's High Estimate
β€”
Your Total (entered)
β€”
What to Take to the Bank
When you meet your mortgage broker, bring this completed budget. The bank wants to see that you've thought through the full project cost β€” not just the home price. A complete budget with real quotes shows competence and reduces lender risk.
Sturgeon County Β· Local Research

What You Need to Know About Your County

Researched directly from Sturgeon County's official publications and bylaws. Use this as your reference before calling the County office. Range Road 260, north of Highway 37.

βœ… Good news confirmed: Sturgeon County has actively approved development permits for modular homes placed on foundations. A real permit was issued in August 2025 for "a Single Detached Dwelling β€” to place a modular home with uncovered rear deck" in Sturgeon County. This is a normal, permitted use.
Permits Required in Sturgeon County
Source: Sturgeon County Bylaw 1385/17 and 2024 permit applications
Critical warning: Any development or construction that occurs BEFORE a permit is issued is subject to a penalty of DOUBLE the current permit fee. Do not break ground without permits in hand.
Permit TypeWhat It CoversWho Issues ItEst. Cost
Development PermitPermission to use the land for residential purposes. Required before building permit.Sturgeon County Planning & Development$500–$1,500
Building PermitCovers the structure itself β€” foundation, home set, electrical rough-inSuperior Safety Codes Inc. (contracted by Sturgeon County)Based on construction value (~0.5–1%)
Private Sewage PermitRequired for septic tank and field installation. Work must start within 90 days of issuance.Superior Safety Codes Inc.~$300–$600
Electrical PermitService connection and panelSuperior Safety Codes Inc.~$200–$500
Plumbing PermitWater lines inside the homeSuperior Safety Codes Inc.~$200–$400
Gas PermitIf connecting to natural gasSuperior Safety Codes Inc.~$200–$400
Source: Sturgeon County Bylaw 1641/23 (2024 Fees and Charges) and permit application forms. Confirm current fees directly with the County.
Development Permit β€” What You'll Need to Submit
Source: Sturgeon County 2024 Development Permit Application
Septic System β€” Sturgeon County Specifics
Source: Sturgeon County 2024 Private Sewage publications
Sturgeon County requires a Private Sewage Permit for all septic installations. The permit is issued by Superior Safety Codes Inc. Work must commence within 90 days of permit issuance. The system must meet Alberta Private Sewage Systems Standards of Practice (ABSOP) 2021 edition.
Modular Home β€” Alberta & Sturgeon County Requirements
CSA A277 is mandatory in Alberta. The modular home MUST be certified to CSA A277 standard β€” this is required by Alberta's Safety Codes Act AND by most lenders for mortgage approval. Confirm this certification in writing with the manufacturer before signing.
Key Contacts β€” Sturgeon County
DepartmentContactWhat They Handle
Planning & Development780-939-8275
sturgeoncounty.ca
Development permits, land use, zoning questions
Superior Safety Codes Inc.1-800-272-9227Building permits, electrical, plumbing, gas, private sewage permits
ATCO Electric310-5678Power service connection to your property
ATCO Gas310-5678Natural gas service (confirm availability on Range Rd 260)
Alberta Water Well Registryalberta.ca/water-well-searchCheck existing wells on or near your parcel
Land Titles Office Alberta780-422-7330Title search, confirm ownership, encumbrances
First Phone Call to Make
Before anything else β€” call Planning & Development
Call 780-939-8275 (Sturgeon County Planning & Development) and ask these specific questions:
Notes from County call
Official Links to Bookmark
πŸ›οΈ
Sturgeon County β€” Permits & Policies
sturgeoncounty.ca/building-development/permits-policies
πŸ“„
Development Permit Application Form (2024 PDF)
Direct download from Sturgeon County
πŸ“„
Building Permit Application Form (2024 PDF)
Direct download from Sturgeon County
πŸ“„
Private Sewage Permit Application (2024 PDF)
Direct download from Sturgeon County
πŸ’§
Alberta Water Well Registry β€” Search existing wells near your parcel
alberta.ca/water-well-search
Site Planner

Where Does the House Go?

Drag the house footprint around the satellite image to test placement. Resize it to match your floor plan. Use the compass to think about sun and wind.

House Width (ft)
76 ft
House Depth (ft)
30 ft
Rotation
0Β°
N
↑
55109 Range Rd 260 Β· Sturgeon County
Red outline = your 2.47 ac parcel (Lot 3, Plan 1921774)
Setback from Rge Rd 260: confirm with County
🏑
76 Γ— 30 ft
πŸ’§
Well/Septic
House footprint (drag to move)
Well / Septic area (drag to move)
What You Can See on This Image
Site Placement Notes